The Stanford

1

Details and Amenities

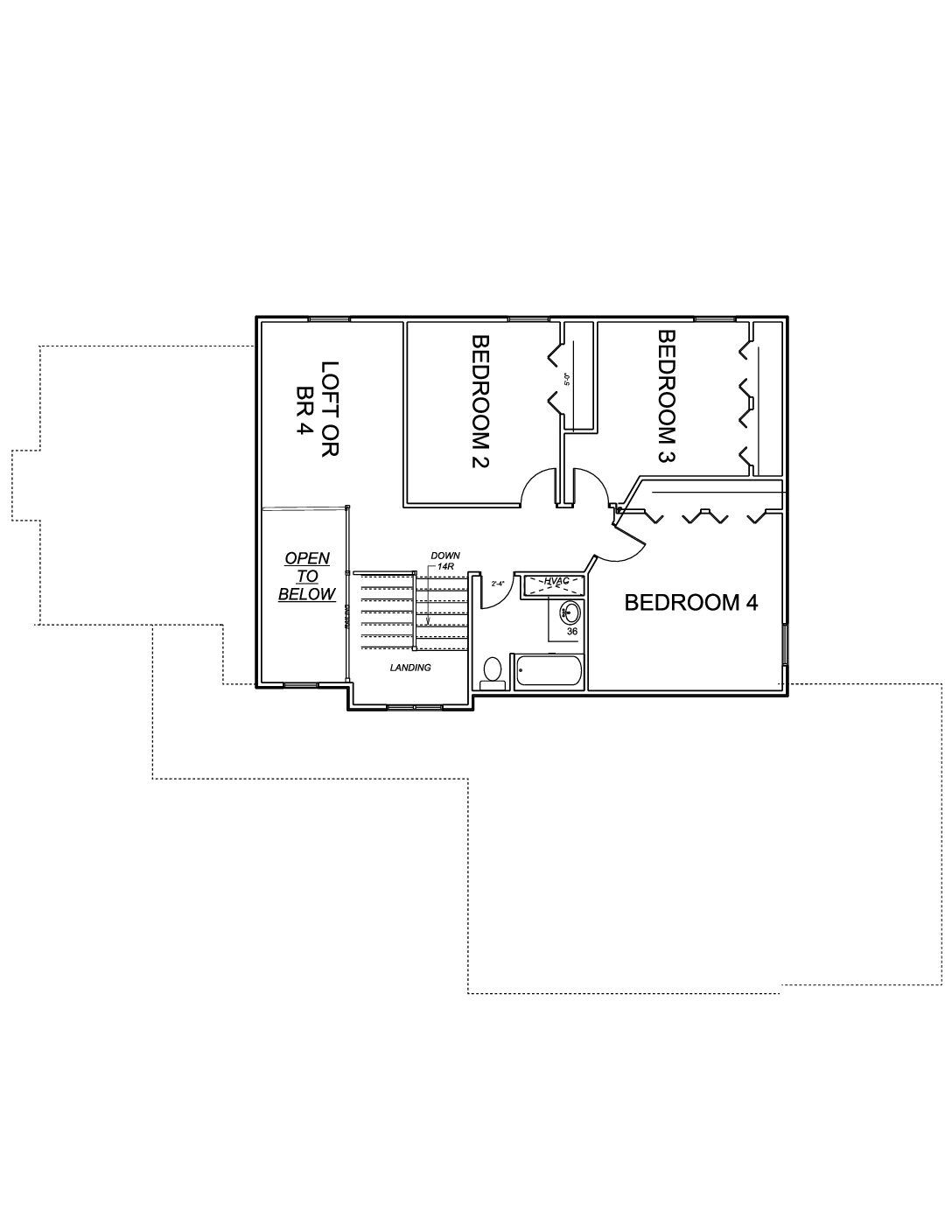
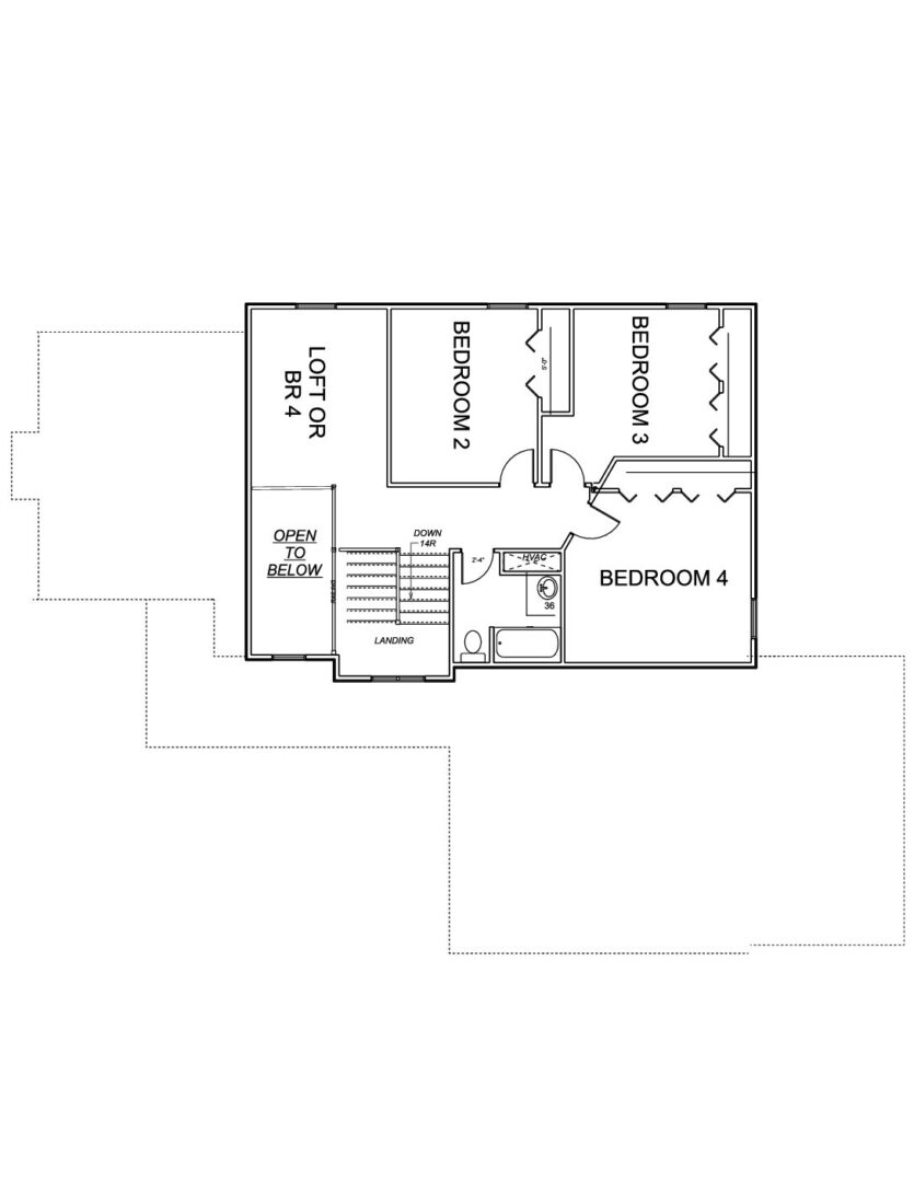
Proposed Custom two story, not built. 4 bedrooms, 2.5 baths, 2.5 car garage. Traditional large covered front porch and main floor owner’s suite make the Stanford custom two story perfect for the empty nester or full family. Interior Foyer is complimented by an open stairwell surrounded by spindles, a two story height, and chandelier. 14 ft cathedral ceiling in family room surrounded by windows. Rear central kitchen is open to family & dining rooms w/ abundant storage and countertop space. Additional social space from dinette to rear deck. Standards include upgraded lighting and trim accents, decorative niches, plant shelves. Multiple vaulted ceilings add character, brightness and spatial expansion. Owner’s suite has large walk-in private bath w/ double sinks, jacuzzi & optional glass-surround shower. Full unfinished basement for optional 5th bedroom, bathroom and storage. See www.luxorhomes.net for standards/options. Liberty Estates Subdivision amenities include central pond w/ fountain, butterfly park, multiple dog-parks, sidewalks, and a pending 20 acre multi-feature regional park and regional bike path adjacent! Shopping, grocery, medical etc are minutes away! Price is an estimate that requires updating/quoting. Contact us for BUILDER INCENTIVES!

 

Standard Model Features

 

 

Optional Features

 

 

Floor Plan

Estimated Pricing

$493,399.00

Available:
Address:
Approximate Size: 2,645
Bedrooms: 4
Baths: 2.5
Type: Two Story

Get More Information

Check All That Apply(Required)
When are you looking to purchase?(Required)
Preferred Contact Method(Required)